| 価格 | 4,080万円 | 間取り | 2K/DK/LDK | 築年月 | 2025/09/30 | 
|---|---|---|---|---|---|
| 交通 | 東武東上線「朝霞」駅徒歩19分、「朝霞台」駅バス10分「溝沼火の見下」停徒歩8分 | 建物面積 | 87.88㎡ | ||
| 物件お問い合わせ番号 | 2025103012 | 
|---|
物件詳細情報
| 種別 | 新築一戸建 | 価格 | 4,080万円 | 間取り | 2K/DK/LDK | 
|---|---|---|---|---|---|
| 所在地 | 朝霞市溝沼3丁目 | ||||
| 交通 | 東武東上線「朝霞」駅徒歩19分、「朝霞台」駅バス10分「溝沼火の見下」停徒歩8分 | ||||
| 築年月 | 2025/09/30 | 新築/中古 | 新築 | 
|---|---|---|---|
| 土地面積/建物面積 | 81.00㎡ / 87.88㎡ | ||
| バルコニー | - | 向き | - | 
| 建物階数 | 地上2階建 | 部屋階数 | - | 
| 建物構造 | 木造2階建 | 区画面積 | - | 
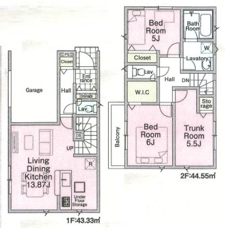
| 間取内容 | LDK・・・13.87帖 洋室・・・6帖・5帖 納戸・・・5.5帖 | ||
| 駐車場 | 有 | 引渡/入居時期 | 令和7年9月以降 | 
| 現況 | 完成済 | 地目 | 宅地 | 
| 用途地域 | 第一種中高層住居専用地域 | 都市計画 | 市街化区域 | 
| 私道負担面積 | - | ||
| 建ぺい率 | 60% | 容積率 | 200% | 
| 土地権利 | 所有権 | 接道状況 | 一方 | 
| 接道方向1 | 北 | 接道間口1 | - | 
| 接道種別1 | 公道 | 接道幅員1 | 6.0m | 
| 設備・条件 | 設備:公営水道・公共下水・都市ガス システムキッチン・ユニットバス(換気暖房乾燥機付)・シャワートイレ・シャワードレッサー・TVモニター付インターホン・防犯カメラ・全居室ペアガラス | ||
| 取引態様 | 仲介 | 物件番号 | 2025103012 | 
| 自社物 | - | 状態 | 完成済 | 
| 物件お問い合わせ番号 | 2025103012 | 
|---|
担当スタッフより
 
											Point
朝霞第一小学校
朝霞第三中学校
マルエツ朝霞溝沼店・・・徒歩1分
セブンイレブン朝霞溝沼店・・・徒歩4分
朝霞溝沼郵便局・・・徒歩11分
塩見クリニック・・・徒歩5分
いずみはし保育園・・・徒歩4分
 
			

 
	 
   
				


住環境良好、全居室収納付、全棟LDKリビングイン階段
車を大切にするビルトインガレージ
リビングイン階段を配したワンフロアタイプのLDK
洋服選びが楽しいウォークインクローゼットを配した洋室